東亜電気工業株式会社 浜松営業所様 新築事務所什器提案・納品
東亜電気工業株式会社 浜松営業所様の新社屋建設に伴い、什器のご提案および納品を担当させていただきました。
一年以上にわたりお客様・設計事務所様とのヒアリングを重ね、建物や眺望など全体の調和を意識した本プロジェクトでは、社員間のコミュニケーションをより円滑にするオフィスを目標に掲げ、計画を進めました。
【事務室】

↑旧事務所レイアウト
旧事務所のレイアウトでは、全員が同一方向を向き、お客様をお迎えするスタイルを採用されており、商社としての「お客様を大切にする姿勢」が強く感じられるものでした。
新社屋ではお客様がオフィスエリア内に立ち入る機会が少ないことから、社員同士の交流を重視したレイアウトをご提案いたしました。

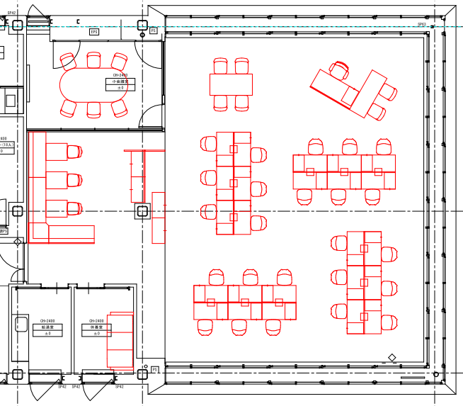
↑新事務所

↑新事務所レイアウト
風車型のレイアウトを採用することで、明確なメイン通路を設けず、多様な動線を生み出しました。これにより、社員同士の偶発的なコミュニケーションが誘発されるようになりました。
また、所長席を斜めに配置することで、部屋全体を見渡せるよう工夫しました。
什器の種類・カラーに関しても、窓から公園の木々が見えるため、その眺望との調和を意識してご選定いただきました。

さらに、旧事務所にはなかった休憩スペースを事務所の一角に新設しました。これにより、離れた席の社員同士の打ち合わせや軽いミーティング、食事・休憩などの交流が容易になり、対話が活発に図られるようになりました。
【ミーティングエリア】

↑大会議室

↑中会議室

↑応接室 特にこだわりをもって家具をご選定いただきました

↑事務所内打合せコーナー

↑エントランス
新社屋には、応接室を兼ねた特別な設えの会議室、日常的な打ち合わせのための会議室など4つのスペースに加え、オフィス内で気軽に利用できるスペースなど、多様な「場」をご用意しました。
これらの空間=「場」は、コミュニケーションの機会を増やし、社員間の連携をより一層深めることを目的としています。
打合せの初期段階で什器メーカーや弊社のショールームを見学していただき、これからのオフィスにおけるコミュニケーションの大切さに共感をいただけました。
所長様を中心として弊社の提案内容を積極的にご採用いただいたので、やりがいを感じながらプロジェクトを進めることができました。
新社屋建設中の仮事務所の計画にも携わらせていただき、心より感謝申し上げます。
貴社の新社屋での一層のご発展とご活躍をお祈り申し上げます。









